Objektname: 32128
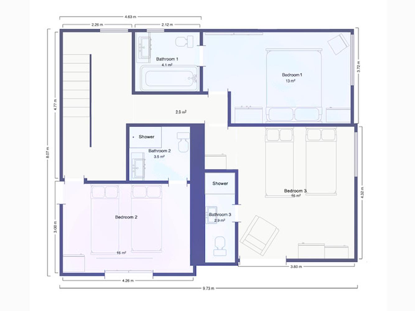
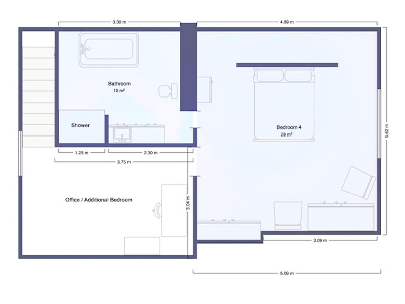
Entfernung zum Skigebiet 3 Vallées ~500 m. Luxuriöses und neu renoviertes Chalet mit Kaminofen und Gratis-WLAN in Meribel-Les Allues. Das Chalet wurde geschmackvoll mit altem Holz und modernen Elementen umgebaut. In der obersten Etage gibt es ein geräumiges Schlafzimmer mit eigenem Bad (Doppelwaschbecken, Dusche, Badewanne und Toilette).
Im 2. Stock befinden sich drei weitere Schlafzimmer - ein Schlafzimmer mit Doppelbett und zwei Schlafzimmer mit jeweils zwei Einzelbetten. Alle Schlafzimmer haben ein eigenes Badezimmer und alle Betten sind 2 m lang.
Die 1. Etage besteht aus einem großen Wohnzimmer mit Sofas neben dem offenen Kamin. Außerdem gibt es auf dieser Etage eine voll ausgestattete separate Küche mit Esstisch.
Im Erdgeschoss befindet sich der Skiraum/Garderobe.
Der kostenlose Skibus bringt Sie bis in den Abend hinein bequem nach Meribel Centre.
Auf Anfrage sind folgende Serviceleistungen möglich (gegen Gebühr, von externen Partner, keine Leistungen von Alpenchalets): Catering, Transfer, Zwischenreinigung.
Skifahren im größten Skigebiet der Welt Les 3 Vallées – Wohnen im traditionellen Bergdorf voller Charme. In Les Allues gibt es verschiedene Restaurants, Bars, eine Bäckerei und ein Supermarkt (ca. 100 bis 300 m). In Méribel-Centre gibt es eine große Auswahl an Geschäften und Dienstleistungen, die Sie mit dem Gratis-Skibus, der Gondelbahn Olympe oder dem Auto in 10 Minuten erreichen können.
Ski-Info
Höhe Chalet 1.100 m; Höhe Skigebiet 3.320 m. Méribel liegt im Herzen des größten Skigebiets der Welt, Les 3 Vallées, mit 600 km Pisten und 172 Skiliften. Optimale Verbindung nach Les Menuires und Val Thorens sowie Courchevel. Das Chalet befindet sich ca. 500 m von der Abfahrtspiste "Villages" und ca. 550 m von der 6-er Gondelbahn Olympe entfernt. Sie ist je nach Schneelage befahrbar und führt nach Méribel-Station, mitten ins Zentrum des Skigebiets Trois Vallées. Skibushaltestelle in ~220 m. Im Tal von Méribel findet man mit dem Mont Vallon einen Paradeskiberg mit aussichtsreichen Pisten und langen Freerideabfahrten. Hier kommen alle auf ihre Kosten, egal ob sie beim Ski alpin, Snowboard, Langlauf oder Schneeschuhwandern. Die Skischule ESF befindet sich in Méribel-Centre. Méribel bietet zwei Snowparks, den Open Park und den Elements Park.
Sommer-Info
Im Sommer stehen Gartentisch und -stühle sowie 2 Liegestühle und ein Außengrill zur Verfügung.
Haben Sie Fragen?